WOHNHAUSANLAGE GRAFENBACH
2632 GRAFENBACH/ST.VALENTIN, KIRCHENGASSE
2015
mehr »
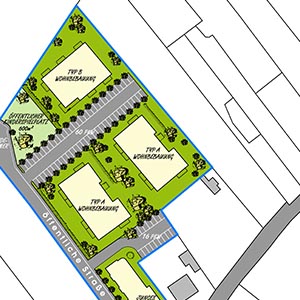
WOHNHAUSANLAGE TERNITZ
2630 TERNITZ, ST.JOHANN/STEINFELDE
2014
mehr »
WOHNHAUSANLAGE EHEM. „KÖRNERHALLE“
2320 SCHWECHAT, RATHAUSPLATZ 7
2014
mehr »
WOHNHAUSANLAGE FLIEGERGASSE
2700 WIENER NEUSTADT, FLIEGERGASSE
2014
mehr »
WOHNHAUSANLAGE BRUNN
2345 BRUNN-GEBIRGE, HEINRICH BABLIK STRASSE 1
2013
mehr »
DACHAUSBAU SCHILLERSTRASSE
2340 MÖDLING, FRIEDRICH SCHILLERSTRASSE 97
2012
mehr »
EINFAMILIENHAUS G.-W.
8043 GRAZ, ROTMOOSWEG
2010
mehr »
JUNGSTARTERWOHNUNGEN
2362 BIEDERMANNSDORF
2010
In Zusammenarbeit mit SPM Projektmanagement GmbH
mehr »
HAUS EINES METALLKÜNSTLERS
8230 HARTBERG
2010
mehr »
WOHNHAUSANLAGE WIENER STRASSE
2340 MÖDLING, WIENER STRASSE 45-47
2008
mehr »
WOHNHAUSANLAGE WIENER GASSE
2380 PERCHTOLDSDORF, WIENER GASSE 82
2008
mehr »
BEBAUUNGSSTUDIE FÜR EINE WOHNHAUSANLAGE
1160 WIEN, MAROLTINGERGASSE 66 LORENZ MANDL- GASSE 37
2008
mehr »
WOHNHAUSANLAGE HOCHHEIMGASSE
1130 WIEN
2004
mehr »
WOHNHAUSANLAGE WIENERSTRASSE
2340 MÖDLING
1999
mehr »
STUDIE WOHNBEBAUUNG
1070 WIEN, KENYONGASSE
1996
mehr »
BEBAUUNGSSTUDIE FÜR EINE WOHNHAUSANLAGE
1100 WIEN, BUCHENGASSE 115
"SEEPARK" am Neufelder See
Bebauungsstudie für 75 Reihenhäuser und gekoppelte Wohneinheiten mit zusätzlichem Lebensmittelmarkt, einen Wohnhaus mit 24 geförderten Wohnungen und einem Betreuten Wohnheim.
Bebauungsstudie für eine Wohnhausanlage
1150 WIEN, Hugelgasse 26 / Preysingergasse 31 mit 63 Wohnungen
Bebauungsstudie für ein bestehendes Wohngebäude
1050 WIEN, Einsiedlergasse 38 mit zusätzlichen 2 Vollgeschossen und einem Dachgeschoss
Umbau Haus Mahdalik
1220 WIEN
Umbau Haus Walcher
1140 WIEN
WOHNHAUSANLAGE FÜR MACULAN AG
1030 WIEN
WOHNBAUSTUDIE FÜR FREIES WOHNEN
2230 GÄNSERNDORF







